
Jucătoarele de structură din oțel sunt o componentă crucială a sistemului de drenare a acoperișului unei clădiri. Funcția lor principală este de a colecta apa de ploaie de pe acoperiș, de a o direcționa în conducte verticale, apoi de a -l descărca în sistemul de drenaj în aer liber, împiedicându -l să erodeze direct pereții sau fundațiile înmuiate. Proiectarea și instalarea produsului Liweiyuan sunt caracterizate prin rezistență ridicată și greutate ușoară, asigurând drenaj neted și o durabilitate excepțională.
Jucătoarele de structură din oțel sunt o componentă crucială a sistemului de drenare a acoperișului unei clădiri. Funcția lor principală este de a colecta apa de ploaie de pe acoperiș, de a o direcționa în conducte verticale, apoi de a -l descărca în sistemul de drenaj în aer liber, împiedicându -l să erodeze direct pereții sau fundațiile înmuiate. Proiectarea și instalarea produsului Liweiyuan sunt caracterizate prin rezistență ridicată și greutate ușoară, asigurând drenaj neted și o durabilitate excepțională.
Jgheabul de structură din oțel din Liweiyuan este confecționat din materiale rezistente la coroziune și rezistente la impact.
Produsul nostru este galvanizat la cald, oferind o rezistență excelentă la coroziune, costuri reduse și o durată de viață lungă. Disponibil în grosimi de 1,5-2,5 mm, este potrivit pentru majoritatea aplicațiilor.
Fabricat din oțel inoxidabil, acest produs oferă rezistență la coroziune și este deosebit de potrivit pentru medii de coastă sau umede. Disponibil în grosimi de 1,0-2,0 mm, oferă un preț mai mare, dar o durată de viață lungă.
Produsele noastre din oțel acoperite cu culori se bazează pe oțel galvanizat, acoperit cu o acoperire rezistentă la intemperii, cum ar fi poliester sau fluorocarbon, atât pentru rezistența la coroziune, cât și pentru efectele decorative. Disponibile în grosimi de 1,2-2,0 mm, sunt potrivite pentru clădirile care necesită un nivel ridicat de apel estetic.
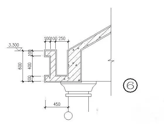
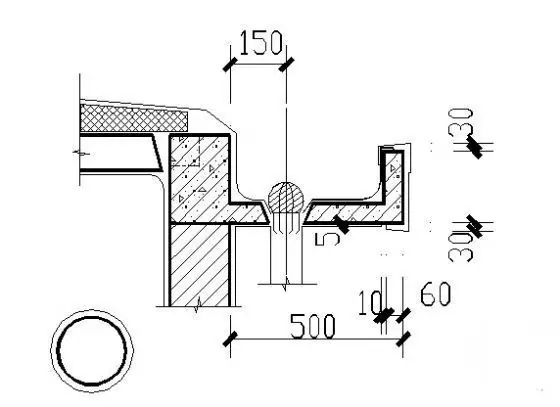
Forma structurală a jgheabului de structură de oțel trebuie adaptată la panta acoperișului și la designul streașului. Tipurile comune includ în formă de U și în formă de V. Procesul de instalare este următorul:
Jucătoarele noastre de structură de oțel folosesc suporturi de jgheaburi din oțel pentru a le asigura pe grinzile sau purlinele de streveturi ale structurii de oțel. Distanța de suport este de 600-1000mm pentru a asigura distribuția chiar a stresului pe jgheab.
Jgheaburile finite sunt pre-dimensionate și conectate la fața locului folosind conectori sau sudură. Etanșarea este necesară la intersecția dintre jgheab și puntea acoperișului.
Putem instala o intermitere deasupra puntea acoperișului. Capătul inferior al jgheabului trebuie așezat sub puntea acoperișului și sigilat cu etanșant. Găurile de scurgere ar trebui să fie prevăzute în partea de jos a jgheabului, în principal pentru conectarea la creșterea apei de ploaie.
Procesul nostru de fabricație al structurii de oțel include tăierea în funcție de dimensiunile desenului, îndoirea, pictura, inspecția produsului finit, ambalajele și transportul. Jgheaburile structurii de oțel ale Liweiyuan sunt proiectate și instalate pentru a asigura rezistența la coroziune, drenarea netedă și durabilitatea, asigurând drenarea eficientă.